Объявления от 5017 до 5040 из 5722 найденных.
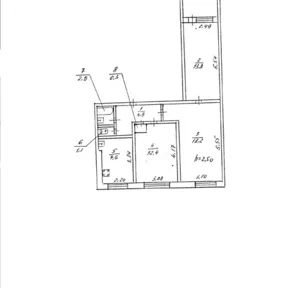
Продам 3-х комн. Квартиру
Продам 3-х комн. Квартиру. На Коммунаре 19 этаж. Общая площадь 62, 2 м. кв. Кухня- 7.6 м. кв Комната1 – 13, 8 м. кВ. комната2 – 18, 2 м. кВ комната 3 – 12, 4 м. кВ. туалет – 1, 2 м. кВ коридор - 4, 9 м. кВ кладовка – 0, 3 м. кВ. балкон – 1, 8 м. кВ. Состояние хорошее жилое. Торг уместен. Т. 0936492233, .
Срочно продам 4 - х комантную квартиру МАКЕЕВКА (МИСИ). СУПЕР ЕВРО
Срочно продам 4 - х комантную квартиру МАКЕЕВКА (МИСИ), ул.Державина. 2/2, площадь 89м.кв., 4 комнаты. Полный ЕВРО из дорогих материалов, металопластиковые окна - REHAU, балкон застеклен, межкомнатные двери - Morandi modern, Итальянская кухня - CA d'ORO, кожаная мебель, тренажерный зал, ДЖАКУЗИ, полностью оборудованная детская комната.
Продам 2 х комнатную квартиру
Продам 2 х комнатную квартиру, 9/9, состояние жилое, 47/25/7, 8. Ленинский район г.Донецка, ориентир - магазин "ОБЖОРА". Комнаты раздельные. Туалет и ванна раздельные. Цена 47000 у.е. Телефон 0504709807, Александр Юрьевич..
Беззалоговый кредит наличными
САМЫЕ НИЗКИЕ ПРОЦЕНТЫ В КИЕВЕ. Беззалоговый кредит наличными (Киев и обл.) Только со справкой: а) с 21 года-до 20000 грн.; б) с 25 лет-до 70000 грн.(мах.- 7 окладов); для официально работающих на СПД (ФО-П) -до 15000 грн.; в) пенсионерам (до 70 лет) с пенсией 800 грн.-5000 грн., с более высокой до 20000 грн.
Купить 3-х комнатную квартиру 100 кв. м в центре Херсона, пр. Ушакова.
Хозяйка (не посредник) предлагает: Недвижимость Херсона. Купить квартиру в самом центре Херсона. Продам 3-х комнатную квартиру на проспекте Ушакова. 3-х комнатная квартира Херсон: «сталинка», эксклюзивная планировка, высокие потолки, холл 10, кухня 11, комнаты 19, 0/19, 6/19, 9. Ванная, санузел раздельно.
Услуги опытного адвоката (юриста)
Весь спектр услуг опытного адвоката и юриста. Исковые заявления, суды, наследство, брак, развод, трудовое, семейное право, ДТП. Работаем по Киеву, Чернигову (областям) и Славутичу. +38_068-237-69-05, +38_0462-92-05-92. см. Сайт http://www.advokat.cn.ua.
3 комн.квартиру в Белгород-Днестровском, 1/5
Продам 3 комн.квартиру в Белгород-Днестровском, 1/5; 72/40(18/12/10)/12, 7коридор11, 3, балкон/лоджия-застекленны, с/у раздельный, балкон расширен, под балконом погреб; счётчики учёта, бойлер, телефон, 20 км от моря, отличное транспортное сообщение(электричка и маршрутка) с морем и Одессой, состояние жилое, рядом школа, садик, Днестровский лиман, крепость.
Продам однокімнатну квартиру
В центрі міста Липовець продається однокімнатна квартира з пристройкою!в квартирі зроблений ремонт, є брон.двері душ. кабіна, телефон, інтернет!Ціна 17, 5 тис.дол(торг).
Украина, г.Киев, Чоколовский бул., 22
Состояние квартиры жилое.В комнате на полу паркет, потолок покрашен, на стенах обои.На кухне рабочая стена в кафеле, на остальных стенах оьбои, потолок покрашен. Санузел совмещенный, на полу линолеум, на стенах обои и пластиковая облицовка.В коридоре на полу линолеум, стены - обои, потолок покрашен..
2-х комнатную квартиру
Продам 2- комнатную квартиру, 5/9, ул Калинина, под ремонт, хорошие соседи, рабочий лифт, рядом школа и авто стоянка..
Срочно куплю 2-х комнатную квартиру в Киеве, на Оболони
Срочно куплю 2-х комнатную квартиру в Киеве, на Оболони, до 72 000 у.е. Исключительно у владельца, старые дома не интересуют. Жду Вашего звонка. т. (067) 942-88-35, (063) 815-47-63. Светлана..
Куплю для себя 2-х комнатную квартиру в Киеве на Майорова 7
Куплю для себя 2-х комнатную квартиру в Киеве на Майорова 7, за 75 000 у.е т. (067) 942-88-35, (063) 815-47-63. Светлана..
Куплю 2-х комнатную квартиру в Киеве, на Оболони (Оболонский р-н)
Куплю 2-х комнатную квартиру в Киеве, на Оболони (Оболонский р-н), у хозяина до 72000 у.е. т.(067) 942-88-35, (063) 815-47-63. Светлана..
Продам 3-комн квартиру
Продам 3-комн квартиру в районе Школа мастеров 9/10 этаж, 63м2. 42000у.е.от застройщика Максим +38 063 413 48 06.
Недвижимость
Продается 2 комнатная квартира в элитном жилом комплексе "Флагман" г. Новороссийск ул. Героев десантников / проспект Ленина - напротив "самолета. 56, 9/35, 0/10, 3, 5 этаж 16-ти эт. секции, дом монолитный, шикарный вид на море: Алексино, Кабардинку, Геленджик. Санузел раздельный, 2 лоджии 12, 4 кв.
Продам 1к квартиру в Измаиле
Продам 1к квартиру. 14я школа Продам две однокомнатные квартиры, находящиеся на одной лестничной клетке, по отдельности или вместе одному хозяину. Киевский проект. Кирпичный дом. Бадаева 2/1, 4й этаж. В квартирах автономное отопление, природный газ. Требуется ремонт. Цена 16 тыс за каждую. Возможно вселение на условиях аренды с дальнейшим выкупом.
продам свою 1 комн. изолир. квартиру в харьковском районе- мерефа( арт
не агенство! продам свою 1 комн. изолир. квартиру в харьковском районе- мерефа( артемовка), 2ои етаж 4х етажного дома, 38/18/7, новые мпо, без ремонта, требуется автономное отопление. цена 15.000 $ тел. 0939800370.
Продам 2к квартиру. Нагорка. 53м2
Продам 2к квартиру в Нагорном р-не. Парковая зона. 6/6, новый дом. Подъезд с ремонтом, закрытый двор, паркинг. 53/27, 7/8, 1. С/у раздельный, комнаты раздельные 16м2 и 11м2. 12м2 - хол. Жилое состояние, но ремонта требует. Вид на парк и Днепр. Цена 47000 у.е. 0666298404, 0684081950.
Продам квартиру, Звездный городок (сданный), Армейская / Говорова Маршала
Продам квартиру, Звездный городок (сданный), Армейская / Говорова Маршала. 2-е комнаты, 8/19-эт., полщадь 74/41/16 м.кв., раздельные комнаты 24 и 17 м.кв., потолки 3, 1, балкон, лоджия. Выполнены черновые работы: стены отшпатлеваны, чистовая стяжка, разводка проводки. Поблизости море, рядом парк Победы.
Продам двухкомнатную квартиру в новом сданном кирпичном доме, срочно!
Продам 2х комнатную квартиру на Армейской (Приморский район). Новый дом, стены красный кирпич. 4/7-эт. дома, площадь 91 м.кв., раздельные комнаты (21 + 18 м.кв.), кухня 15 м.кв., потолки 3м, два балкона, эркер, гардеробная 6, 4 м.кв., большой раздельный санузел (8, 32 м.кв), дом газифицирован, состояние от строителей.
Продам 3-х комнатную квартиру в Аркадиевском дворце, Аркадия, Приморск
Продам 3-х комнатную квартиру в Аркадиевском дворце. 7-й этаж 12-и эт. дома, расположенного на Гагаринском плато, в самом сердце Аркадии (Приморский район, Одесса). Общая площадь 242 м.кв., жилая 82 м.кв, кухня 50 м.кв., потолки 3 м.кв, холл 42 м.кв, большая лоджия, две просторных террасы, большой раздельный санузел.
Трехкомнатная квартира
Уютная квартира 15 минут от центра города , дубовый паркет, две застекленные лоджии, перепланировка, бойлер, отдельная кладовка на площадке..
Терміново продається 3-х кімнатна квартира в м. Калуш.
Вул. Євшана, 3. , 64 м2. Зручне розташування. Все поруч: зупинки, магазини школи, дет. садочки, пошта и др. В хорошому стані, другий поверх п’яти поверхового будинку. Автономне опалення. Паркет. Вода цілодобово. Ціна 35000$. Торг..
Терміново продається шикарна 3-х кімнатна квартира в м. Ів-франківськ,
Новобудова, шикарний проект, 100м2 по вул.. Черновола, 107. Будінок розташований на проти входу в центральний парк Шевченка. 5-й поверх з 6-і. VIP євроремонт. Дубова кухня з вмонтованою технікою: газова плита, духова шафа, мийка, витяжка все фірми «Franke». Єгипетська обліцовачна плитка. Бамбуковий паркет.
На данной странице представлены бесплатные объявления в разделе Продажа квартир, Украина . Чтобы подобрать объявления по ключевому слову, типу или цене воспользуйтесь формой поиска. Вы также можете очень просто и быстро добавить свое объявление. Чтобы дать объявление в категории Продажа квартир, Украина перейдите по ссылке "Дать объявление".
Вы просмотрели объявления в разделе Продажа квартир, Украина на сайте AdMir - мир бесплатных объявлений. Здесь вы можете найти объявления от частных лиц, фирм или интернет магазинов по темам продажа Продажа квартир, Украина, купить Продажа квартир, Украина, сдам Украина, сниму Украина, продам недвижимость в городе Украина.
AdMir это доска объявлений, где любой желающий может разместить бесплатные объявления.
Чтобы отредактировать ранее добавленные объявления или просмотреть сообщения на ваши объявления воспользуйтесь вкладкой "Мои объявления" в верхнем меню.
